世田谷A邸+伊藤潤一(後編)
カテゴリー: カーライフ
タグ: EDGEが効いている / ガレージハウス
2010/11/25
多くの設計士に無理と言われながらもビルトインにこだわる
広さや豪華さばかりを求めがちだが、ガレージへの想いは人それぞれあるものソアラに乗り続けるAさんがこだわったのは屋内であることだった
余白とガレージを共存させた緻密な計算
「この土地でインナーガレージのある3階建ては、多くの設計士が法的に無理と考えたはずです。しかし、細かい計算の結果、解析できました」
と伊藤さん。A夫妻の思いと伊藤さんのテクニックが凝縮されたA邸を正面から見ると、玄関までのアプローチが贅沢な空間であることに気付く。そこに佇むだけで外界とは違う空気感がある。この感覚は、玄関のドアを開けた瞬間にも味わえる。正面の坪庭が空間の広がりを与え、単なる開放感だけではなく、ゆとりを感じさせるのだ。
「視線が抜ける『余白』を設けました。現在、ほとんどの家のエントランスは必要最小限ですが、本来は人を迎える大切な場所なのです」
伊藤さんは続けて、「昔の日本の家には、『引き』がありましたが、今では無駄な空間と捉えられています。たとえばA邸の玄関にある坪庭は『引き』の空間です」
エントランスは人が出入りするだけの場所である…という考え方では、このような空間は設けられない。
「たとえば、江戸時代の町屋には中庭のような空間がありました。そこが上昇気流を生み出し、風を送り込むという機能があるのです。一見無駄に見える空間も大事な機能をもっているのですが、そんな昔からあった余白や余分を切り取ってしまっているんですね」
伊藤さんの言葉を頭の中で反すうしながら2階へ。階段下から見上げると、半透明の階段が螺ら旋せん状に展開している。たっぷりとした自然光が立体感を強調し、まるでマーガレットの花のような美しさを思わせた。階段を上りきると、リビングルームとダイニングルームのちょうど中間に出た。
右手は、奥様の希望で設えたアイランド型キッチンを中心としたダイニングルーム。左手は、こちらも奥様こだわりの家具で構成されたリビングルームだ。どちらも自然光がたっぷりと注ぎ込み、半透明の階段を美しく際立たせている。ここは、個人住宅というよりもリゾートにあるコンドミニアムという雰囲気だ。いつでも非日常が味わえる、じつに羨ましい空間である。
肝心のガレージは、玄関横のドアからもアクセスできる。伊藤さん以外の設計士がダメ出ししただけあって、愛車ソアラがジャストサイズのスペース。それでもほぼ無音のスライド式シャッターや、メンテナンス用のグッズ類などが充実し、Aさんの愛車に対する思いが垣間見られる。
改めて正面から外観を観察すると、ガレージはブラックとブラウンで統一され、高級感をもたせている。ふと玄関のドアに目をやると、そこには一般の住宅ではあまり目にしないウッドパネルがあしらわれていた。
「ソアラの内装のウッドパネルがお好きだと聞いたもので…」
と伊藤さん。施主の満足度を高めるためにはいっさいの妥協を許さない、伊藤さんのコダワリである。
文・菊谷 聡 text / KIKUTANI Satoshi
写真・木村 博道 photos / KIMURA Hiromichi
構成・石井 隆 editorial / ISHII Takashi
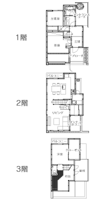
広いエントランスとその先にある中庭によって、奥行きのある玄関を演出している
1階から2階へは真っ白な直階段で上がる。その先に踏み板にガラスを使った螺旋階段が広がっている
3階は洋室のほかに、リビングの吹き抜けの上を通り抜ける通路を設けている
世田谷A邸
建築家:伊藤潤一
tel.03-3488-5226
E-mail.info@ito-jun.com
http://ito-jun.com/
所在地:東京都世田谷区 主要用途:専用住宅
家族構成:夫婦 構造:木造
規模:地上3階建 敷地面積:89.99㎡
延床面積:93.93㎡
設計・監理:伊藤潤一建築都市設計事務所/伊藤潤一
日刊カーセンサーの厳選情報をSNSで受け取る
あわせて読みたい
“日本の誇り” 日産 R35 GT-Rは果たしてスーパーカーなのか?【スーパーカーにまつわる不思議を考える】
’07 フェラーリ F430|空力とヘリテージが息づくV8ミッドシップ【名車への道】
’73 シトロエン DS|独自のデザインと乗り心地、そのすべてに“哲学”がある【名車への道】
フェラーリの維持費ってどれくらいかかるの? そんなリアルな疑問、専門店に聞いてきた!
~300万では選べない、1000万では高すぎる~ 600万円で探せる一度は乗っておくべきクルマ【カーセンサーEDGE 2025年11月号】
マセラティ MC12ストラダーレ最高額落札の盛り上がりの陰で、マクラーレンの“最終車両”コレクションがひっそりと販売されていた!?
エントリーモデルとして成功を収めたフェラーリの“V8フロントエンジン”の系譜とは【スーパーカーにまつわる不思議を考える】
BMWのMとは違う“絶妙”な味を堪能できるオススメの「BMWアルピナ」モデル5選【2025年最新版】
~価格だけでは語れない、フェラーリの本質~ フェラーリは本当に高いのか?【カーセンサーEDGE 2025年10月号】
【試乗】新型 ランボルギーニ ウルスSE|普段使いはほぼモーター! スーパーカーの速さを備える800psのスーパーSUVはハンドリングも燃費も上々









